


De HOWO NX vrachtwagenkraan is een veelzijdig zwaar voertuig dat efficiënt heffen en betrouwbaar transport combineert. Gebouwd op het HOWO NX 8×4 chassis, levert hij robuuste kracht en is uitgerust met een Palfinger SPS40000 kraan, die een maximaal hefvermogen van 16 ton en een hefkoppel van 40 tonmeter biedt. De vijfdelige telescopische giek kan tot 19 meter worden uitgeschoven en maakt een volledige rotatie van 360 graden mogelijk, waardoor hij breed inzetbaar is voor het heffen van zwaar materieel en het transporteren van materialen in de gemeentelijke bouw, mijnbouw en andere sectoren.
Werkcapaciteit :
16 tonsCabinetype :
HOWO NXAfmeting (mm) :
12000×2550×3930Aandrijfsysteem :
8×4Wielbasis (mm) :
1800+4600+1350Motorspecifiek :
371HP/WD615.47Versnellingsbak :
HW19710Vooras (kg) :
6500/7000Achteras (kg) :
17500/17500Opmerking :
XCMG crane, UNIC crane, knuckle boom crane is optionalDe HOWO NX 8×4 vrachtwagenkraan is een multifunctioneel zwaar voertuig dat hijs- en transportmogelijkheden combineert. Hij is uitgerust met een Palfinger SPS40000 kraan met een maximaal hefvermogen van 16 ton en een hefkoppel van 40 tonmeter. De vijfdelige telescopische giek kan volledig worden uitgeschoven tot 19 meter en biedt, samen met de 360-graden draaifunctie, flexibele inzetbaarheid in diverse hijssituaties. Het chassis is gebaseerd op de HOWO NX-serie en wordt aangedreven door een 9,7-liter dieselmotor met een vermogen van 273 kW, gekoppeld aan een 10-versnellingsbak en een luchtremsysteem voor stabiele prestaties onder complexe werkomstandigheden.
Met een totaalgewicht van 31 ton en een laadbak met interne afmetingen van 8150 × 2450 × 600 mm voldoet het aan de eisen voor zowel het hijsen van apparatuur als het transport van bouwmaterialen. De steunpoten bieden een volledige overspanning van 7,25 meter, wat operationele stabiliteit garandeert. HOWO 16-tons giekkraanwagen Het is bijzonder geschikt voor gemeentelijke bouw- en mijnbouwprojecten. Met een hefhoogte van 21,5 meter en een maximale werkradius van 18,6 meter zorgt het voor een efficiënte coördinatie tussen het hijsen van zware materialen en transport over middellange tot korte afstanden.

CS TRUCKS is een professionele fabrikant op het gebied van vrachtwagens.
Wij garanderen dat alle producten gloednieuw en van hoge kwaliteit zijn.
»»I.Productdefinitie en -introductie:
Fabrikant:CS-vrachtwagens
Productkenmerken
▶ Betrouwbaar chassis: Gebouwd op het robuuste HOWO 8×4 chassis, laadvermogen tot 40 ton.
▶ Krachtige motor: Met SINOTRUK WD615.47 dieselmotor, 371 pk vermogen, 9,726 liter cilinderinhoud.
▶ Duurzame kraan: Uitgerust met een PALFINGER SPS40000 telescoopkraan, met een maximaal hefvermogen van 16 ton.
▶ Grote doos: De afmetingen van de vrachtdoos zijn 8150 × 2450 × 600 mm, geschikt voor het vervoer van grote goederen.
»» II. Productparameters voor de HOWO NX-giekkraanvrachtwagen:
| Technische parameters van het voertuig | |
| Productnaam | HOWO NX vrachtwagen met kraan Palfinger SPS40000 |
| Bruto voertuiggewicht (kg) | 31000 |
| Leeggewicht (kg) | 18660 |
| Totale afmetingen (mm) | 12000×2550×3930 |
| Wielbasis (mm) | 1800+4600+1350 |
| Maximaal aantal toegestane passagiers | 3 |
| Aanloop-/vertrekhoek (°) | 17/11 |
| Voor-/achteroverhang (mm) | 1550/2700 |
| Maximale rijsnelheid (km/u) | 89 |
| Technische parameters van het chassis | |
| Chassismodel | HOWO NX |
| Motormodel | WD615.47 |
| Brandstoftype | Diesel |
| Aantal cilinders | 6 |
| Verplaatsing | 9,726 L |
| Maximaal vermogen | 371 pk (273 kW) |
| Nominale snelheid | 2200 toeren per minuut |
| Max. koppel | 1500 N.m |
| Snelheid bij maximaal koppel | 1100-1600 tpm |
| Overdragen | HW19710, 10 versnellingen |
| Voor-/achterasbelasting | 6500/7000/17500 kg |
| Aantal assen | 4 |
| Aantal bladveren | 11/11/12 stuks |
| Remmen | Luchtremmen |
| Bandenmaat | 12.00R20 |
| Aantal banden | 12+1 stuks |
| Kraanparameters | |
| Kraanmodel | Palfinger SPS40000 |
| Maximaal tilgewicht | 16.000 kg |
| Maximaal tilmoment | 40 meter |
| Maximaal bereik | 18,6 m |
| Maximale hefhoogte | 21,5 m |
| Lengte van het gieksysteem (ingetrokken) | 6,23 m |
| Lengte van het gieksysteem (volledig uitgeschoven) | 19 m |
| Aantal gieksecties | 5 |
| Bedrijfsdruk | 32 MPa |
| Rotatiehoek | 360 graden volledige rotatie |
| Uitsteeksel (volledig uitgestrekt) | 7250 mm |
| Parameters van de laadbak | |
| Binnenafmetingen van de doos (mm) | 8150×2450×600 mm |
| Materiaal | Koolstofstaal |
| Dikte | Vloer: 4 mm; Wanden: 3 mm |

»» Ⅲ. HOE Voordelen van het chassis



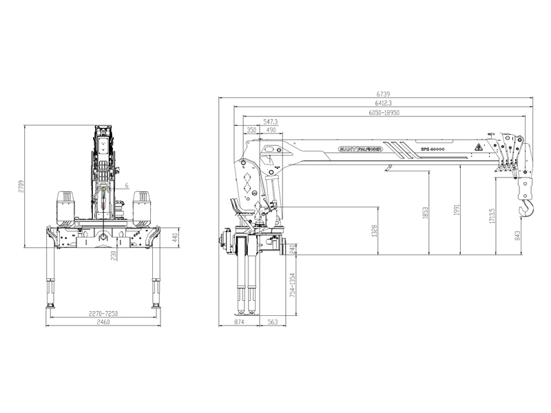
»» Ⅵ. Specificaties van de Palfinger SPS40000 kraan:
![]() | ![]() |
| Model | SPS40000 |
| Beoordeeld tilmoment | 40 meter |
| Nominaal hefvermogen | 16000 kg (2,5 m) |
| Max. bereik | 18,6 m |
| Maximale lengte van de haak | 6 |
| Zwenkhoek | Continu |
| giekhefhoek | 0 ~ 75° |
| Maximale hefhoogte (de meting vanaf de grond nadat de steunpoten volledig zijn uitgeschoven) | 21,5 m |
| Lengte van het gieksysteem (ingetrokken) | 6,23 m |
| Lengte van het gieksysteem (volledig uitgeschoven) | 19 m |
| Boomsecties | 5 |
| Spanwijdte van de steunpoten (volledig uitgeschoven) | 7250 (mm) |
| Aanbevolen debiet | 80 ~ 110 l/min |
| Bedrijfsdruk | 32 MPa |
| Aanbevolen olietankinhoud | 300 liter |
| Kraanmoment (dynamisch) | 913,8 kNm |
| 93,1 mt | |
| Torsiemoment (dynamisch) | 52,5 kNm |
| 5,4 m | |
| Kraangewicht | 6000 kg |
1. We kunnen de ontwerpen maken volgens uw wensen. aan uw eisen.
2. Wij kunnen u het volgende aanbieden:hoge kwaliteit en een redelijke prijs
3. Wij kunnen u het volgende aanbieden:een betrouwbare service na aankoop
4. We hebbenbekwaam professioneel ontwerpteam
5.Snelle levering. Elke bestelling is welkom.
Wij van CS TRUCKS leveren ook reserveonderdelen (origineel, OEM en vervangend) voor alle soorten HOWO speciale vrachtwagens en trailers met korting en van hoge kwaliteit, zodat de vrachtwagens en trailers van onze klanten in goede werkende staat blijven.

SINOTRUK HOWO zware kraanwagens voor export

SINOTRUK HOWO vrachtwagens met gemonteerde kraan, klaar voor levering.
Laat een bericht achter
Scan de scan naar WeChat/WhatsApp :